首页 关于我们 新闻资讯 产品中心 工程案例 展厅中心

产品中心

产品种类已覆盖医用钢质门、医用推拉门、室内门、防火门、钢质墙板、钢质空间隔断、金属吊顶等。从接待处到ICU,从化验室到手术室,从病房到行政办公,我们为医院空间环境设计研发多年的产品覆盖各类医院的特定需求..

工程案例

兰州天佑智能制造技术有限公司致力于成为可提供高品质医疗建筑环境整体解决方案的专业公司,经过多年的钢质建材产品生产沉淀与发展,产品种类已覆盖医用钢质门...

更多

产品中心









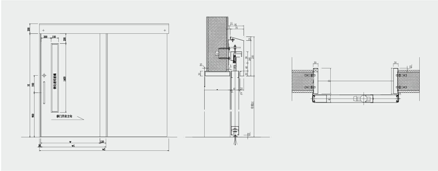
产品特性
  • 在建筑墙体门洞宽度尺寸有限的前提下,二联式的移门,可轻松实现更大的有效通过宽度。
  • 采用轻量化的壁挂式双层金属夹板设计,进出顺畅、不积尘、卫生、方便清洁。
  • 移门关闭过程中,双层夹板通过联动机构同时平移运行,与门板一起整齐的嵌入墙体夹层,使建筑整体效果更加简洁、流畅,一气呵成。
  • 自动闭门功能,末端缓冲装置,全开停门,天地门锁等功能。
  • 斜面式样视窗,不积尘、卫生、方便清洁。
门型参数
  • 门框钢板厚度1.5mm
  • 门扇钢板厚度0.6mm
  • 门扇厚度40~50mm
  • 门扇骨架厚度≥1.0mm
  • 开闭门运动速度250-500mm/s(可调)
  • 手动推力<100N
  • 隔声性能Rw=33dB三级(GB/T8485-2008)
  • 防撞性能符合GB/T20909-2007
  • 保温性能传热系数K=2.8W/(m2.k)五级
  • 内部填充聚氨酯发泡材料、蜂窝芯
  • 单开门1250×2500
  • 可选视窗圆形、方形玻璃视窗
资料下载